[心得] 26坪中古屋三房改兩房,台中室內設計
https://i.postimg.cc/xdGM31m1/26-PULO-12.jpg

主要是兩人住,加上比較重視公共空間,因為工作性質的關係比較常會在家裡辦公,所以大多數的預算都放在廚房客廳跟工作區。
全室都有鋪超耐磨地板,主臥室因為有現成的傢俱所以選擇不特別裝修,採光較差的房間則選擇做成更衣室
完整圖文版▼
https://hi.puloapp.com/xMv7a
【 裝潢需求與規劃 】
房屋狀況:台中,約 26 坪 (不含陽台),3 房 2 廳 2 房 2 廳
裝潢預算:約0-80萬(個人有追加)
裝潢重點:玄關落塵區、客廳公共區域、開放式廚房、隔間、天花板、木地板、更衣室
https://i.postimg.cc/CLMPZ9W8/26-PULO-1.jpg

衛浴的部分本來有想要做一些不同的風格但是預算就會爆表,後來謹慎考量後,覺得屋齡很新、磁磚狀態也很好,後來僅針對兩件衛浴乾濕分離、衛浴五金、鏡子、檯面浴櫃做更新。
兩間衛浴這樣子換下來應該差不多6-7萬,當然如果沒有換這些東西的話價格又會再更低。
廚房的抽油煙機、爐台跟水槽都有換新的(應該3萬-4萬左右),原本廚房格局有做調整,當然如果東西是沿用原建商的這筆費用又可以再降低。
起初統包跟設計師我都有考慮,也談過溝通不少,但後來發現統包的報價不一定比設計師來的便宜,細項也寫的不是很清楚,有些設計師明明事前我有告知預算,最後報價卻多了一倍。
後來總算遇到讓我覺得積極、好溝通、還會幫你省點錢的設計師,平台還會撥電關心你的進度以及詢問設計師服務的狀況。
先上兩張前屋主的屋況▼
https://i.postimg.cc/tCrrF2jM/26-PULO-3.jpg


經過設計師的建議後,決定三房改成兩房,把公共空間加大,並且做出玄關。
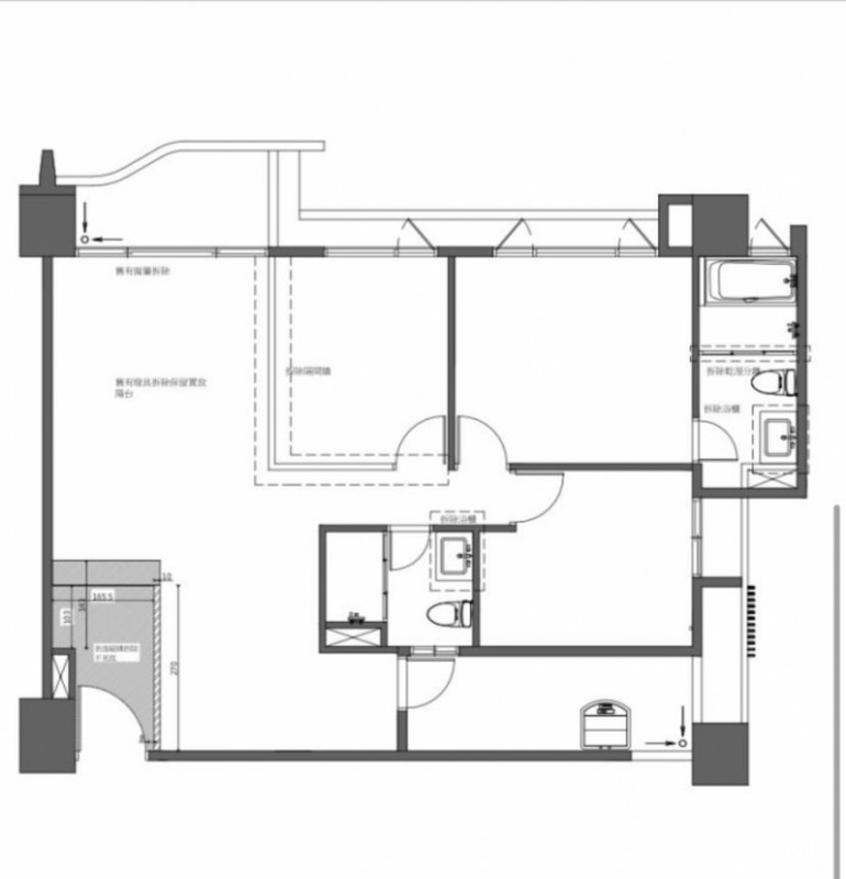
【空間設計圖】
https://i.postimg.cc/tTHD9c3Y/26-PULO-4.jpg

設計師提供的平面配置圖▲
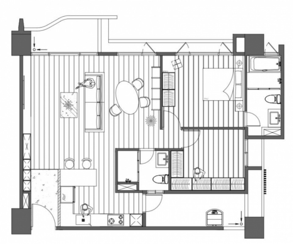
https://i.postimg.cc/Y0r3Wmy7/26-PULO-5.jpg

設計師提供的 3D 圖▲
設計師還教我把客廳系統櫃及電器櫃出售補貼了一些費用,我是po在FB地區二手傢俱買賣售出的,不無小補還省了一些清運費。
再來上幾張施工中的圖,主要就放上格局變動最大的部分。
拆除前▼
https://i.postimg.cc/fy8vjT69/26-PULO-6.jpg

拆除後▼
https://i.postimg.cc/4dZvD9Gc/26-PULO-7.jpg

玄關木作施工中▼
https://i.postimg.cc/Jnq3Mz72/26-PULO-8.jpg

玄關落塵區泥作▼
https://i.postimg.cc/7PK1RhWC/26-PULO-9.jpg

接下來不囉嗦直接上完工圖!
玄關用六角磚做出落塵區,灰鏡除了出門前整理儀容之外,還有更大的功能就是遮擋電箱。
https://i.postimg.cc/ZnsrvsdP/26-PULO-10.jpg

再來就是穿鞋椅,設計師幫我搭配的兩張是收納型的,可以活動的好處就是,如果朋友來的時候拉出來也可以當客椅。
洞洞板則是買現成的,因為配件很多可以搭配。
https://i.postimg.cc/pLFDyZX8/26-PULO-11.jpg

我的夢想就是有一個中島吧檯區,平常用餐就在這裡,天花板的部分只有做到玄關跟廚房,其他都是採用投射燈。
https://i.postimg.cc/xdGM31m1/26-PULO-12.jpg

▲客廳窗簾的選擇紗簾加上調光簾
https://i.postimg.cc/nc6m8DYL/26-PULO-13.jpg

▲如果有注意到插座的部分,插座都更換質感更好的木製開關
https://i.postimg.cc/tgznVm01/26-PULO-14.jpg

▲這裡規劃成複合式的區域,可以是書房、工作區。也可以是朋友來人多時候的用餐區。
https://i.postimg.cc/kg32Ydq6/26-PULO-18.jpg




https://i.postimg.cc/LXX5g9B7/26-PULO-19.jpg

▲衛浴簡單的乾濕分離、五金更換。
【住後心得】
放上家裡兩貓住爽爽的照片,整體的舒適度動線使用上都非常得好,如果有東西想微調設計師還是願意幫你處理,真的在家都有種在咖啡廳的感覺。
https://i.postimg.cc/LXL91Jgx/26-PULO-20.jpg





當初也擔心櫃體沒有做很多收納會不會不夠放,結果空格還是很多,東西只要用完再買然後有定期的整理收納,真的不用多花錢做很多收納。
完整圖文版▼
--
77
[心得] 再給我選一次還是會裝潢其實之前有稍微在板上分享過裝潢文章, 再加上目前已經入住一年多了, 看到大家在這上面討論蠻熱鬧的,那我來稍微分享一下心得 其實我當初也很掙扎要不要花這些錢在裝潢上,![[心得] 再給我選一次還是會裝潢 [心得] 再給我選一次還是會裝潢](https://i.imgur.com/THJURAWb.jpeg)
11
[心得] 新婚成家開箱,從裝潢到新生活的心路歷程【前言】 經歷種種一波三折的購屋事件後,好不容易,新婚的我們終於在新北有了自己的家,真的好感動!(想起來還是覺得不可思議) 購屋後終於可以規劃自己家的樣子,許多長輩建議找統包,網路上也看到不少高手找統包做的也好美好漂亮,雖然我們預算也不是特別充裕,但是研究了一下發現裝潢的細節真的不是普通複雜,在時間精力有限的狀況下,加上沒有經驗,還是想説找設計師幫助好了,畢竟好不容易才有了自己的家,希望後續入住後也可以開心完美,不會有遺憾。 裝潢結果真的很滿意,沒有後悔,也跟大家分享這個過程。 【房屋資訊】![[心得] 新婚成家開箱,從裝潢到新生活的心路歷程 [心得] 新婚成家開箱,從裝潢到新生活的心路歷程](https://i.imgur.com/pzvsoCnb.jpg?fb)
13
[心得] 台北小坪數預售屋格局客變分享這幾年房價狂飆,實在慶幸自己當時有趕上車,最近也交屋正在裝潢中,前陣子才跟設計 師一起去現場場勘,想到當時跟設計師一起討論客變的過程彷彿近在眼前,也不知道自己 未來有沒有機會換房,思考可以把這次客變的過程做個整理當紀錄,如果能給正在客變的 人一點靈感也不錯,還能趁機賺一點p幣哈哈哈。 文筆不是太好,但我會盡量把這次客變跟設計師討論的想法整理清楚,讓大家可以參考。![[心得] 台北小坪數預售屋格局客變分享 [心得] 台北小坪數預售屋格局客變分享](https://i.imgur.com/pRPO88kb.jpg)
9
[問題] 12年中古屋裝潢建議1、案件地點 : 桃園蘆竹區 2、房屋類型: 電梯大樓 3、房屋坪數: 室內29坪 4、房屋格局: 3房2廳2衛 5、裝潢預算 : 100萬6
[問題] 高雄房子翻新裝潢推薦打咧賀,最近在三民區買了一間10多年的中古屋, 室內實坪約25坪(不含陽台)3房1廳1廚房2衛浴2陽台 屋內需要一些整修,希望可以在版上徵求有口碑的統包商或設計師 但預算有限,希望可以找到價格合理且好溝通的廠商 主要需求如下:5
[問題] 桃園區中古屋最近於桃園跟朋友的朋友買房 所謂一波三折 其房子原本是買兩間打通 一間是三間臥室+廚房/一間是客廳+書房 我們買下的是後者 賣家會復原原有隔間廚房 現況照片如下![[問題] 桃園區中古屋 [問題] 桃園區中古屋](https://i.imgur.com/edbqq7db.jpg)
5
[心得] GAGU統包北歐風裝潢分享半年前買了一間新成屋給爸媽當養老房 房子的格局為2房2衛 平時只有家人在住 我偶爾會因為工作關係回來住個幾天 所以我們也順利想好房子的規劃是 1.裝潢風格走北歐風+開放式廚房![[心得] GAGU統包北歐風裝潢分享 [心得] GAGU統包北歐風裝潢分享](https://i.imgur.com/a7Cx7Vhb.jpg)
3
[問題] 舊空屋裝潢報價單請益今年準備搬到十幾年前買的房子 因為裡面只有基本衛浴 / 廚房用品 / 照明 其他就是單純的空屋 因此找設計師幫忙設計出圖想一次規劃到位 房子大約40坪2
[開箱] 【台南】輕奢精緻現代宅 (光立室內設計)前言: 這篇絕對不是葉配!! 完全出自自己內心的開心與滿意 真心地來分享與推薦!! (1)簡介![[開箱] 【台南】輕奢精緻現代宅 (光立室內設計) [開箱] 【台南】輕奢精緻現代宅 (光立室內設計)](https://i.imgur.com/umw06r5b.jpg)
1
新竹新成屋統包裝潢1、案件地點 :新竹縣竹東鎮 2、房屋類型:新成屋,已完工預計八月初交屋 3、房屋坪數:室內22坪(不含陽台) 4、房屋格局:2+1房2廳2衛1陽台 5、裝潢預算 : 請來信報價